
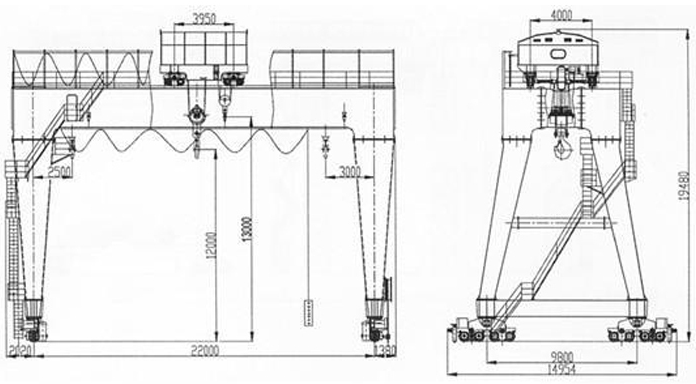
เครนยกของหนัก คู่ขาคานเครน 30 ตัน
คานคู่เครนขาตะขอใช้ภายนอกคลังสินค้าหรือรถไฟด้านข้างยกทั่วไปและงานขนถ่าย เครนชนิดนี้ประกอบด้วยสะพาน สนับสนุนรถเข็นพร้อมกว้านยกที่แข็งแรง อุปกรณ์ไฟฟ้า และระบบควบคุม ขา เครนเดินทางอวัยวะ เป็นการออกแบบงานหนัก สามารถแพร่หลายใช้ในอุตสาหกรรมทุกชนิด
รายละเอียดสินค้า
เครนยกของหนัก ขาคานคู่เครน 30 ตัน
คานคู่เครนขาตะขอใช้ภายนอกคลังสินค้าหรือรถไฟด้านข้างยกทั่วไปและงานขนถ่าย เครนชนิดนี้ประกอบด้วยสะพาน สนับสนุนรถเข็นพร้อมกว้านยกที่แข็งแรง อุปกรณ์ไฟฟ้า และระบบควบคุม ขา เครนเดินทางอวัยวะ เป็นการออกแบบงานหนัก สามารถแพร่หลายใช้ในอุตสาหกรรมทุกชนิด
Hot Tags: เครนยกของหนัก คู่คานขาเครน 30 ตัน จีน ผู้ผลิต ผู้จำหน่าย โรง งาน บริษัท กำหนดเอง ซื้อ ราคาต่ำ ราคาถูก ขาย
ผลิตภัณฑ์ที่เกี่ยวข้อง
สอบถาม